Im Liebherr-Werk Nenzing wurde eine Industriebodensanierung notwendig, nachdem sich mehrere Bodenbereiche abgesetzt hatten.
Ausgangslage: URETEK stabilisiert geschwächte Betonböden und hebt abgesunkene Bereiche an - der Industrieboden wurde erfolgreich saniert
Lösung: Lagerhalle innerhalb von 15 Tagen stabilisiert
Im Oktober 2004 wurde innerhalb von 15 Arbeitstagen eine Gesamtfläche von 900 m² Industrieboden saniert und stabilisiert. Die Setzungsprobleme waren zurückzuführen auf eine Kombination aus wenig tragfähigem Boden und der hohen Belastung der Betonböden. Die Arbeiten wurden während der Betriebszeiten des Werkes durchgeführt.
Die zu injizierende Fläche wurde in Abstimmung mit der Werksleitung in 6 Abschnitte unterteilt. Die Festlegung der Injektionstiefen erfolgte entsprechend der erbohrten Untergrundsituation. Die Injektionen erfolgten in 2 Tiefenstufen, 0,4 m und 1,2 m unter der Fußbodenoberkante. In Abschnitt 1 wurden in einem Teilbereich von ca. 20 m² die Injektionen in einer Tiefenzone von 1,8 m unter FUK durchgeführt.
Im Dezember 2005 erfolgte eine weitere Sanierung von nochmals 1300 m². Die Injektionen verfüllten die vorhandenen Hohlräume, erzielten erneut einen guten Kraftschluss zwischen Betonplatte und Boden und hoben die abgesenkten Bereiche um mehrere cm an. Die maximale Anhebung betrug 6,4 cm. Zusätzlich wurde in der Anhebungsphase die Abstützung der Kranbahn mit der Bodenplatte mit angehoben.
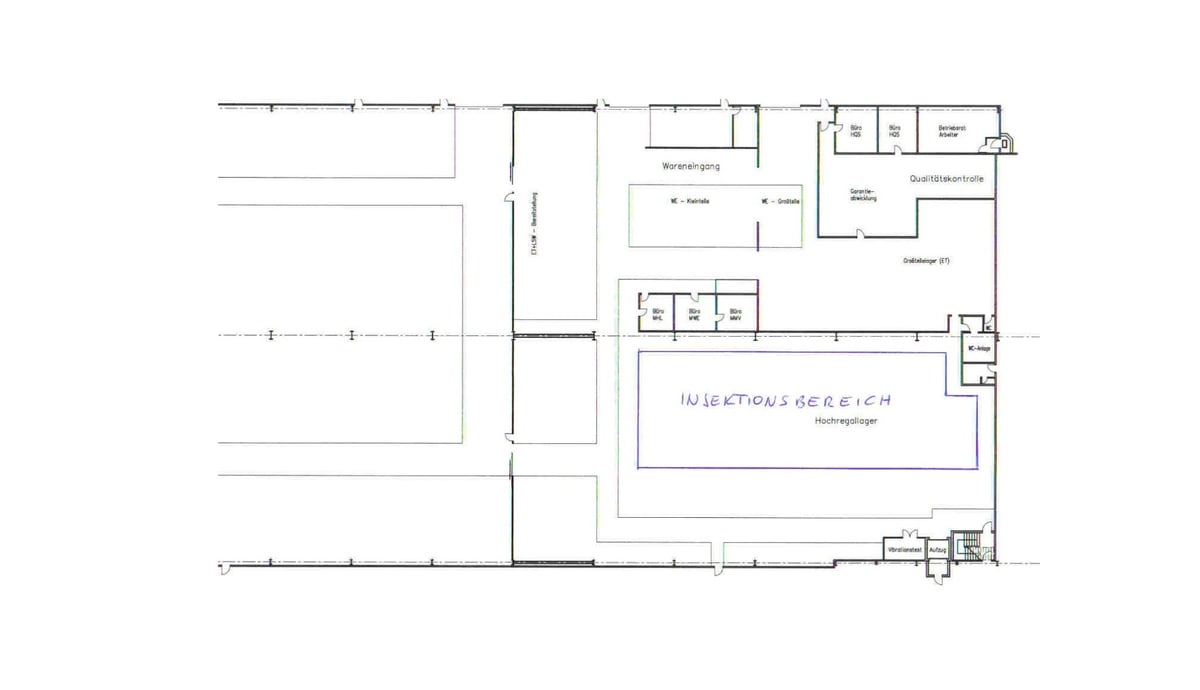
Im Januar 2006 wurden 630 m² Betonboden in dem Regallager stabilisiert. Die Arbeiten wurden, damit der Betrieb ungestört stattfinden konnte, außerhalb der Betriebszeiten des Regallagers durchgeführt. Die Festlegung der Injektionstiefen erfolgte entsprechend der erbohrten Untergrundsituation. Die Einteilung der Injektionsbereiche war durch die Fahrgassen vorgegeben. Die Injektionen erfolgten 0,4 m unter FBOK. Der Kraftschluss zwischen Betonplatte und Untergrund wurde wiederhergestellt. Danach erfolgte eine gezielte Anhebung der abgesackten Bodenbereiche und einzelner Regalstützen, um die Be- und Entladung des Regallagers in den gegenständlichen Bereichen ohne zeitliche Einschränkung (in Form von Nachgreifen mit der Staplergabel beim Be- und Entladen) zu ermöglichen.
In Januar 2007 wurde eine Fläche von ca. 170 m² stabilisiert. Die Arbeiten wurden ebenso außerhalb der Betriebszeiten durchgeführt. Die Festlegung der Injektionstiefen erfolgte entsprechend der erbohrten Untergrundsituation. Die Einteilung der Injektionsbereiche wurde aufgrund der Höhenvermessung festgelegt. Die Injektionen erfolgten 0,3 m und 1,3 m unter FBOK. Anschließend erfolgte eine gezielte Anhebung abgesackter Bodenbereiche.
IMPRESSIONEN
















